Проект дома «норд»
ПРОЕКТ ДОМА «НОРД»
Компактный одноэтажный каркасный дом в скандинавской архитектуре, с чёткой геометрией, панорамным остеклением и террасой.
Проект создан для тех, кто ценит спокойствие, функциональность и честную архитектуру без избыточных решений — дом, который органично вписывается в ландшафт и подходит для комфортной загородной жизни круглый год.
Компактный одноэтажный каркасный дом в скандинавской архитектуре, с чёткой геометрией, панорамным остеклением и террасой.
Проект создан для тех, кто ценит спокойствие, функциональность и честную архитектуру без избыточных решений — дом, который органично вписывается в ландшафт и подходит для комфортной загородной жизни круглый год.
Площадь дома 54 м2
1 спальня
1 санузел
терасса 18,7 м2
стоимость проекта от 50 000₽ за 1 м2
Архитектурная концепция
В основе проекта «Норд» — принципы скандинавской архитектуры: простота формы, функциональность и уважение к окружающему ландшафту. Дом спроектирован как компактный, но полноценный объём для комфортной загородной жизни без избыточных решений и визуального шума.
Архитектура подчинена логике использования пространства. Чёткая геометрия одноэтажного объёма обеспечивает рациональное распределение площадей, а лаконичный силуэт дома делает его универсальным для различных участков — от лесных до открытых пространств.
Главный фасад решён через раздельное панорамное остекление гостиной зоны. Два отдельных окна формируют сбалансированную композицию фасада, обеспечивают достаточный уровень естественного света и сохраняют приватность интерьера. Такое решение исключает избыточное остекление и повышает энергоэффективность дома.
Проект «Норд» — это архитектура без компромиссов между эстетикой и практичностью. Дом, в котором каждый элемент имеет функциональное обоснование, а форма следует образу жизни владельца.
Архитектура подчинена логике использования пространства. Чёткая геометрия одноэтажного объёма обеспечивает рациональное распределение площадей, а лаконичный силуэт дома делает его универсальным для различных участков — от лесных до открытых пространств.
Главный фасад решён через раздельное панорамное остекление гостиной зоны. Два отдельных окна формируют сбалансированную композицию фасада, обеспечивают достаточный уровень естественного света и сохраняют приватность интерьера. Такое решение исключает избыточное остекление и повышает энергоэффективность дома.
Проект «Норд» — это архитектура без компромиссов между эстетикой и практичностью. Дом, в котором каждый элемент имеет функциональное обоснование, а форма следует образу жизни владельца.
Конструктив и технология строительства
Проект «Норд» реализуется по технологии правильного каркасного домостроения, рассчитанного на круглогодичную эксплуатацию в климатических условиях с перепадами температур, ветровыми и снеговыми нагрузками.
Все конструктивные решения заложены на этапе проектирования и направлены на долговечность, энергоэффективность и стабильную геометрию дома в течение всего срока эксплуатации.
Все конструктивные решения заложены на этапе проектирования и направлены на долговечность, энергоэффективность и стабильную геометрию дома в течение всего срока эксплуатации.
Каркас
Каркас работает как единая система без усадок и деформаций.
- силовой каркас из сухой строганной древесины камерной сушки;
- расчётный шаг стоек;
- усиленные зоны панорамного остекления;
- диагональные связи для пространственной жёсткости.
Каркас работает как единая система без усадок и деформаций.
Энергоэффективность и тёплый контур
Дом рассчитан на круглогодичное проживание в климатических условиях Сибири.
Дом быстро прогревается и эффективно удерживает тепло, снижая затраты на отопление.
Дом рассчитан на круглогодичное проживание в климатических условиях Сибири.
- утепление стен, пола и кровли по нормативам;
- многослойный «пирог» стен с паро- и ветрозащитой;
- исключение мостиков холода;
- герметичный тёплый контур по всему периметру.
Дом быстро прогревается и эффективно удерживает тепло, снижая затраты на отопление.
кровля
Конструкция кровли рассчитана на снеговые нагрузки и стабильную работу в зимний период.
- скатная кровля с надёжной стропильной системой;
- кровельное покрытие: металлочерепица или фальцевая кровля (в зависимости от комплектации);
- утепление кровли по нормативам для постоянного проживания;
- система водоотведения и снегозадержания.
Конструкция кровли рассчитана на снеговые нагрузки и стабильную работу в зимний период.
Остекление и свет
Панорамное остекление выполнено с учётом теплотехнических требований:
Большие окна не снижают энергоэффективность дома и безопасны в эксплуатации.
Панорамное остекление выполнено с учётом теплотехнических требований:
- энергоэффективные стеклопакеты;
- усиленные оконные проёмы;
- ориентация остекления для максимального естественного света без перегрева помещений.
Большие окна не снижают энергоэффективность дома и безопасны в эксплуатации.
Инженерные системы
Проект предусматривает размещение всех ключевых инженерных систем:
Все инженерные решения интегрированы в проект и не требуют «доработок по факту».
Проект предусматривает размещение всех ключевых инженерных систем:
- системы отопления (электрическое или водяное — по выбору);
- приточно-вытяжная вентиляция;
- разводка инженерных коммуникаций внутри тёплого контура;
- возможность адаптации под индивидуальные сценарии эксплуатации.
Все инженерные решения интегрированы в проект и не требуют «доработок по факту».
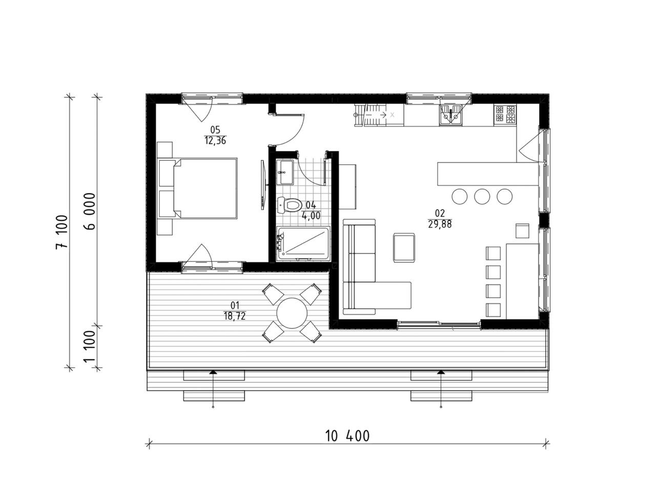
Планировка
Планировка проекта «Норд» выстроена вокруг главного принципа — компактность без ощущения тесноты. Дом спроектирован так, чтобы каждый метр работал на комфорт, а пространство легко адаптировалось под разные сценарии жизни.
Центром дома является объединённая гостиная–кухня–столовая — пространство для повседневной жизни, общения и отдыха.
Центром дома является объединённая гостиная–кухня–столовая — пространство для повседневной жизни, общения и отдыха.
- Кухня-гостиная 29,9 м² с выходом на террасу 18,7 м²;
- Одна спальня 12,36 м²;
- Один санузел;
- Тёплый тамбур.
Этот дом подойдёт тем, кто:
- не хочет переплачивать за лишние квадратные метры;
- ищет компактный, но полноценный дом для жизни;
- ценит свет, тишину и приватность;
- планирует загородную жизнь без усложнённых сценариев обслуживания дома.
Ключевые преимущества проекта
- современная, сдержанная скандинавская архитектура;
- два раздельных фронтальных окна в зоне гостиной — свет без перегрева;
- инженерно выверенный каркас;
- адаптация под климат региона;
- удобная и логичная планировка без «пустых» зон;
- оптимальное соотношение площади, комфорта и стоимости.
«НОРД» — это компактный дом с ясной архитектурной логикой.
Дом, где:
Дом, где:
- пространство работает, а не простаивает;
- кухня и гостиная — полноценные, а не номинальные;
- архитектура подчёркивает комфорт и спокойствие, а не демонстрирует масштаб.
Если вам откликается такой подход к дому
Вы уже увидели, как мы работаем с архитектурой, деталями и качеством.
Если вам близка эта эстетика, логика и отношение к строительству —
предлагаем сделать следующий шаг.
Если вам близка эта эстетика, логика и отношение к строительству —
предлагаем сделать следующий шаг.
Это не заявка и не обязательство — а возможность понять, каким может быть именно ваш дом: по стилю, бюджету, срокам и сценарию жизни. Мы изучим ответы и вернёмся к вам с первичными идеями и рекомендациями.
Не готовы оставлять заявку?
Напишите нам в мессенджере — ответим на вопросы и подскажем, с чего начать.
Напишите нам в мессенджере — ответим на вопросы и подскажем, с чего начать.
Наш адрес: красноярск, ул. Красной звезды 1
8 902 920 21 05
dto@primedevelop.ru
prime develop