проект бани (20)
это современная компактная баня в формате модульного объёма с мягкой скруглённой архитектурой и акцентом на минимализм. Проект выделяется чистой геометрией, лаконичным фасадом и эффектным входным порталом с деревянной отделкой, который формирует ощущение уюта уже с первого шага.
Баня создавалась как приватное пространство для спокойного отдыха и восстановления. Благодаря вытянутой форме и продуманной планировке внутри удалось разместить все ключевые зоны без ощущения тесноты. Проект отлично подойдёт для небольших участков, размещения у бассейна или как отдельный SPA-модуль на загородной территории.
Комната отдыха
Компактная и функциональная комната отдыха с панорамным остеклением. Пространство рассчитано на зону расслабления между парениями — здесь можно разместить диван или кресла, небольшой столик, зону хранения. Большое окно наполняет помещение естественным светом и визуально расширяет объём, создавая ощущение открытости и связи с природой.
Парная
Парная спроектирована с учётом классических банных сценариев. Компактные размеры сочетаются с продуманной эргономикой: удобное расположение полков, корректные расстояния до печи и комфортная посадка. Подходит для парения 2–3 человек. Возможна адаптация под различные типы печей и режимы эксплуатации.
Душевая
Отдельная душевая зона расположена между парной и комнатой отдыха, что делает использование бани логичным и удобным. Пространство компактное, но функциональное — идеально для охлаждения после парения и повседственного использования.
Крыльцо / входная зона
Минималистичное крыльцо интегрировано в общий объём бани и подчёркивает архитектурную концепцию проекта. Входная зона служит переходным пространством между улицей и интерьером, создавая плавный сценарий использования и дополнительный комфорт.
Баня создавалась как приватное пространство для спокойного отдыха и восстановления. Благодаря вытянутой форме и продуманной планировке внутри удалось разместить все ключевые зоны без ощущения тесноты. Проект отлично подойдёт для небольших участков, размещения у бассейна или как отдельный SPA-модуль на загородной территории.
Комната отдыха
Компактная и функциональная комната отдыха с панорамным остеклением. Пространство рассчитано на зону расслабления между парениями — здесь можно разместить диван или кресла, небольшой столик, зону хранения. Большое окно наполняет помещение естественным светом и визуально расширяет объём, создавая ощущение открытости и связи с природой.
Парная
Парная спроектирована с учётом классических банных сценариев. Компактные размеры сочетаются с продуманной эргономикой: удобное расположение полков, корректные расстояния до печи и комфортная посадка. Подходит для парения 2–3 человек. Возможна адаптация под различные типы печей и режимы эксплуатации.
Душевая
Отдельная душевая зона расположена между парной и комнатой отдыха, что делает использование бани логичным и удобным. Пространство компактное, но функциональное — идеально для охлаждения после парения и повседственного использования.
Крыльцо / входная зона
Минималистичное крыльцо интегрировано в общий объём бани и подчёркивает архитектурную концепцию проекта. Входная зона служит переходным пространством между улицей и интерьером, создавая плавный сценарий использования и дополнительный комфорт.
Сделаем эту баню или спроектируем другую — под ваш участок и задачи.
Зона отдыха
Центральное пространство бани с панорамным остеклением и большим количеством естественного света. Подходит для отдыха после парения, общения и приёма гостей. Формирует основную атмосферу проекта и визуально связана с участком.
Парная
Спроектирована с учётом правильного теплового контура, циркуляции воздуха и безопасных расстояний.
Подходит для регулярного использования в любое время года.
Подходит для регулярного использования в любое время года.
Душевая
Отдельная влажная зона с удобным доступом из парной.
Продумана для комфортного использования и лёгкого обслуживания.
Продумана для комфортного использования и лёгкого обслуживания.
Терраса
Продолжение внутреннего пространства. Используется как зона отдыха, охлаждения и летних сценариев.
Конструктив и технология строительства
Проекты бань PRIME DEVELOP реализуются по технологии правильного каркасного домостроения с учётом снеговых, ветровых и температурных нагрузок региона.
Конструктивные решения подбираются так, чтобы баня была тёплой, стабильной и долговечной при круглогодичной эксплуатации.
Тип фундамента подбирается индивидуально под конкретный участок и геологические условия
(свайно-ростверковый или монолитная плита).
• расчёт под фактические грунты
• стабильная несущая способность
• минимальные теплопотери через основание
Конструктивные решения подбираются так, чтобы баня была тёплой, стабильной и долговечной при круглогодичной эксплуатации.
Тип фундамента подбирается индивидуально под конкретный участок и геологические условия
(свайно-ростверковый или монолитная плита).
• расчёт под фактические грунты
• стабильная несущая способность
• минимальные теплопотери через основание
КАРКАС
Силовой каркас выполняется из сухой строганой древесины камерной сушки.
• расчётный шаг стоек
• усиленные зоны панорамного остекления
• диагональные связи для пространственной жёсткости
Каркас работает как единая система без усадок и деформаций.
Силовой каркас выполняется из сухой строганой древесины камерной сушки.
• расчётный шаг стоек
• усиленные зоны панорамного остекления
• диагональные связи для пространственной жёсткости
Каркас работает как единая система без усадок и деформаций.
ПЕРЕКРЫТИЯ И КРОВЛЯ
Конструкции перекрытий и кровли рассчитываются под нормативные снеговые и ветровые нагрузки.
Конструкции перекрытий и кровли рассчитываются под нормативные снеговые и ветровые нагрузки.
- односкатные или двускатные решения
- организованный водоотвод
- долговечные кровельные материалы
ТЕПЛОИЗОЛЯЦИЯ И ПАРОЗАЩИТА
Тепловой контур проектируется с учётом банных режимов и перепадов температур.
Тепловой контур проектируется с учётом банных режимов и перепадов температур.
- эффективная теплоизоляция стен, пола и кровли
- корректная пароизоляция в парной
- защита конструкций от влаги и конденсата
Инженерные системы
Все инженерные системы проектируются как часть единой конструкции.
Все инженерные системы проектируются как часть единой конструкции.
- вентиляция парной и влажных зон
- электрика с учётом температурных режимов
- подготовка под печи и оборудование
РЕЗУЛЬТАТ
Баня получается:
Баня получается:
- тёплой и энергоэффективной
- устойчивой к климатическим нагрузкам
- комфортной для регулярного использования
- конструктивно правильной и долговечной
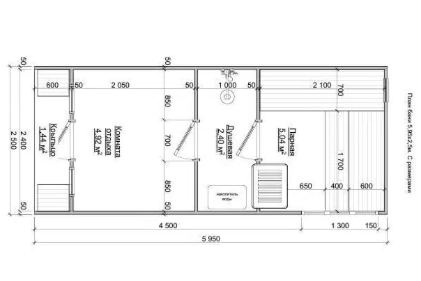
Планировка
Планировка бани проектируется как единое пространство для комфортного отдыха и восстановления.
Мы избегаем лишних метров и случайных решений — каждый элемент имеет функциональное назначение и логичное место.
Мы избегаем лишних метров и случайных решений — каждый элемент имеет функциональное назначение и логичное место.
- Общая площадь: ~13–14 м²
- Габариты по пятну застройки: ~2,5 × 5,95 м
- Этажность: 1 этаж
- Формат: модульная баня
Обсудим ваш проект бани
Мы реализуем этот проект или разработаем индивидуальное решение — под ваш участок, задачи и сценарий жизни.
какой может быть ваша баня
Не готовы оставлять заявку?
Напишите нам в мессенджере — ответим на вопросы и подскажем, с чего начать.
Напишите нам в мессенджере — ответим на вопросы и подскажем, с чего начать.
Наш адрес: красноярск, ул. Красной звезды 1
8 902 920 21 05
dto@primedevelop.ru
prime develop