проект бани (04)
Компактная, тёплая и архитектурно выверенная баня для загородного участка. Проект выполнен в современном стиле с односкатной кровлей и натуральной деревянной отделкой, благодаря чему баня органично вписывается в природное окружение и выглядит актуально вне времени.
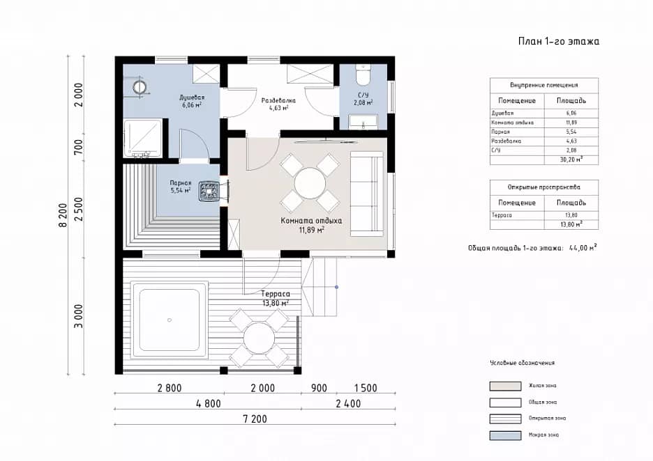
Внутреннее пространство спроектировано максимально функционально:
Проект подойдёт как для частного использования, так и для инвестиционных решений (аренда, гостевые дома, банные комплексы). Конструкция и планировка позволяют гибко адаптировать баню под разные бюджеты и комплектации — от базового тёплого контура до полностью укомплектованного решения «под ключ».
Баня 03 — это сбалансированное сочетание архитектуры, функциональности и атмосферы отдыха, где каждая деталь имеет практический смысл.
Внутреннее пространство спроектировано максимально функционально:
- уютная комната отдыха с возможностью размещения дивана и стола,
- полноценная парная с правильной геометрией и безопасными расстояниями под печь,
- душевая и санузел, логично связанные между собой,
- отдельная раздевалка, повышающая комфорт использования бани в любое время года.
Проект подойдёт как для частного использования, так и для инвестиционных решений (аренда, гостевые дома, банные комплексы). Конструкция и планировка позволяют гибко адаптировать баню под разные бюджеты и комплектации — от базового тёплого контура до полностью укомплектованного решения «под ключ».
Баня 03 — это сбалансированное сочетание архитектуры, функциональности и атмосферы отдыха, где каждая деталь имеет практический смысл.
Сделаем эту баню или спроектируем другую — под ваш участок и задачи.
Зона отдыха
Центральное пространство бани с панорамным остеклением и большим количеством естественного света. Подходит для отдыха после парения, общения и приёма гостей. Формирует основную атмосферу проекта и визуально связана с участком.
Парная
Спроектирована с учётом правильного теплового контура, циркуляции воздуха и безопасных расстояний.
Подходит для регулярного использования в любое время года.
Подходит для регулярного использования в любое время года.
Душевая
Отдельная влажная зона с удобным доступом из парной.
Продумана для комфортного использования и лёгкого обслуживания.
Продумана для комфортного использования и лёгкого обслуживания.
Терраса
Продолжение внутреннего пространства. Используется как зона отдыха, охлаждения и летних сценариев.
Конструктив и технология строительства
Проекты бань PRIME DEVELOP реализуются по технологии правильного каркасного домостроения с учётом снеговых, ветровых и температурных нагрузок региона.
Конструктивные решения подбираются так, чтобы баня была тёплой, стабильной и долговечной при круглогодичной эксплуатации.
Тип фундамента подбирается индивидуально под конкретный участок и геологические условия
(свайно-ростверковый или монолитная плита).
• расчёт под фактические грунты
• стабильная несущая способность
• минимальные теплопотери через основание
Конструктивные решения подбираются так, чтобы баня была тёплой, стабильной и долговечной при круглогодичной эксплуатации.
Тип фундамента подбирается индивидуально под конкретный участок и геологические условия
(свайно-ростверковый или монолитная плита).
• расчёт под фактические грунты
• стабильная несущая способность
• минимальные теплопотери через основание
КАРКАС
Силовой каркас выполняется из сухой строганой древесины камерной сушки.
• расчётный шаг стоек
• усиленные зоны панорамного остекления
• диагональные связи для пространственной жёсткости
Каркас работает как единая система без усадок и деформаций.
Силовой каркас выполняется из сухой строганой древесины камерной сушки.
• расчётный шаг стоек
• усиленные зоны панорамного остекления
• диагональные связи для пространственной жёсткости
Каркас работает как единая система без усадок и деформаций.
ПЕРЕКРЫТИЯ И КРОВЛЯ
Конструкции перекрытий и кровли рассчитываются под нормативные снеговые и ветровые нагрузки.
Конструкции перекрытий и кровли рассчитываются под нормативные снеговые и ветровые нагрузки.
- односкатные или двускатные решения
- организованный водоотвод
- долговечные кровельные материалы
ТЕПЛОИЗОЛЯЦИЯ И ПАРОЗАЩИТА
Тепловой контур проектируется с учётом банных режимов и перепадов температур.
Тепловой контур проектируется с учётом банных режимов и перепадов температур.
- эффективная теплоизоляция стен, пола и кровли
- корректная пароизоляция в парной
- защита конструкций от влаги и конденсата
Инженерные системы
Все инженерные системы проектируются как часть единой конструкции.
Все инженерные системы проектируются как часть единой конструкции.
- вентиляция парной и влажных зон
- электрика с учётом температурных режимов
- подготовка под печи и оборудование
РЕЗУЛЬТАТ
Баня получается:
Баня получается:
- тёплой и энергоэффективной
- устойчивой к климатическим нагрузкам
- комфортной для регулярного использования
- конструктивно правильной и долговечной
Планировка
Планировка бани проектируется как единое пространство для комфортного отдыха и восстановления.
Мы избегаем лишних метров и случайных решений — каждый элемент имеет функциональное назначение и логичное место.
Мы избегаем лишних метров и случайных решений — каждый элемент имеет функциональное назначение и логичное место.
- ОБЩАЯ ПЛОЩАДЬ: ~44–46 м²
- ГАБАРИТЫ ПО ПЯТНУ ЗАСТРОЙКИ: примерно 7,2 × 8,2 м
- ТЕРРАСА: ~13–15 м²
- ЭТАЖНОСТЬ: 1 этаж
Обсудим ваш проект бани
Мы реализуем этот проект или разработаем индивидуальное решение — под ваш участок, задачи и сценарий жизни.
какой может быть ваша баня
Не готовы оставлять заявку?
Напишите нам в мессенджере — ответим на вопросы и подскажем, с чего начать.
Напишите нам в мессенджере — ответим на вопросы и подскажем, с чего начать.
Наш адрес: красноярск, ул. Красной звезды 1
8 902 920 21 05
dto@primedevelop.ru
prime develop