проект бани (03)
Баня (03) Современная одноэтажная баня с акцентом на комфорт, архитектурную выразительность и приватный отдых. Проект сочетает лаконичную форму, тёплые натуральные материалы и продуманную планировку, подходящую как для регулярного использования, так и для загородного отдыха с гостями.
Архитектура построена на сочетании односкатной кровли, тёмного дерева и панорамного остекления. Просторная терраса становится логичным продолжением внутреннего пространства и формирует единый сценарий отдыха — от парной до зоны релакса на свежем воздухе.
Планировочное решение
Внутреннее пространство организовано максимально функционально:
Проект легко адаптируется под участок, ориентацию по сторонам света и индивидуальные пожелания — по отделке, инженерии и комплектации.
Архитектура построена на сочетании односкатной кровли, тёмного дерева и панорамного остекления. Просторная терраса становится логичным продолжением внутреннего пространства и формирует единый сценарий отдыха — от парной до зоны релакса на свежем воздухе.
Планировочное решение
Внутреннее пространство организовано максимально функционально:
- комната отдыха с естественным освещением и выходом на террасу,
- парная с правильным тепловым контуром,
- душевая и санузел, объединённые в удобный влажный блок,
- тамбур, отделяющий тёплый контур от улицы
Проект легко адаптируется под участок, ориентацию по сторонам света и индивидуальные пожелания — по отделке, инженерии и комплектации.
Сделаем эту баню или спроектируем другую — под ваш участок и задачи.
Зона отдыха
Центральное пространство бани с панорамным остеклением и большим количеством естественного света. Подходит для отдыха после парения, общения и приёма гостей. Формирует основную атмосферу проекта и визуально связана с участком.
Парная
Спроектирована с учётом правильного теплового контура, циркуляции воздуха и безопасных расстояний.
Подходит для регулярного использования в любое время года.
Подходит для регулярного использования в любое время года.
Душевая
Отдельная влажная зона с удобным доступом из парной.
Продумана для комфортного использования и лёгкого обслуживания.
Продумана для комфортного использования и лёгкого обслуживания.
Терраса
Продолжение внутреннего пространства. Используется как зона отдыха, охлаждения и летних сценариев.
Конструктив и технология строительства
Проекты бань PRIME DEVELOP реализуются по технологии правильного каркасного домостроения с учётом снеговых, ветровых и температурных нагрузок региона.
Конструктивные решения подбираются так, чтобы баня была тёплой, стабильной и долговечной при круглогодичной эксплуатации.
Тип фундамента подбирается индивидуально под конкретный участок и геологические условия
(свайно-ростверковый или монолитная плита).
• расчёт под фактические грунты
• стабильная несущая способность
• минимальные теплопотери через основание
Конструктивные решения подбираются так, чтобы баня была тёплой, стабильной и долговечной при круглогодичной эксплуатации.
Тип фундамента подбирается индивидуально под конкретный участок и геологические условия
(свайно-ростверковый или монолитная плита).
• расчёт под фактические грунты
• стабильная несущая способность
• минимальные теплопотери через основание
КАРКАС
Силовой каркас выполняется из сухой строганой древесины камерной сушки.
• расчётный шаг стоек
• усиленные зоны панорамного остекления
• диагональные связи для пространственной жёсткости
Каркас работает как единая система без усадок и деформаций.
Силовой каркас выполняется из сухой строганой древесины камерной сушки.
• расчётный шаг стоек
• усиленные зоны панорамного остекления
• диагональные связи для пространственной жёсткости
Каркас работает как единая система без усадок и деформаций.
ПЕРЕКРЫТИЯ И КРОВЛЯ
Конструкции перекрытий и кровли рассчитываются под нормативные снеговые и ветровые нагрузки.
Конструкции перекрытий и кровли рассчитываются под нормативные снеговые и ветровые нагрузки.
- односкатные или двускатные решения
- организованный водоотвод
- долговечные кровельные материалы
ТЕПЛОИЗОЛЯЦИЯ И ПАРОЗАЩИТА
Тепловой контур проектируется с учётом банных режимов и перепадов температур.
Тепловой контур проектируется с учётом банных режимов и перепадов температур.
- эффективная теплоизоляция стен, пола и кровли
- корректная пароизоляция в парной
- защита конструкций от влаги и конденсата
Инженерные системы
Все инженерные системы проектируются как часть единой конструкции.
Все инженерные системы проектируются как часть единой конструкции.
- вентиляция парной и влажных зон
- электрика с учётом температурных режимов
- подготовка под печи и оборудование
РЕЗУЛЬТАТ
Баня получается:
Баня получается:
- тёплой и энергоэффективной
- устойчивой к климатическим нагрузкам
- комфортной для регулярного использования
- конструктивно правильной и долговечной
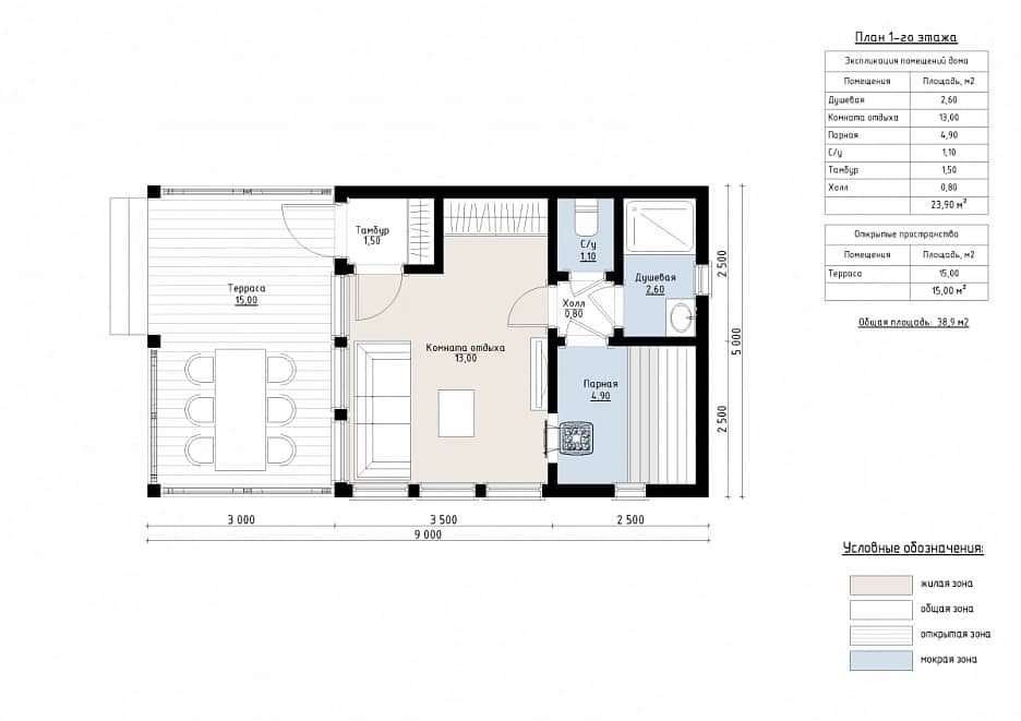
Планировка
Планировка бани проектируется как единое пространство для комфортного отдыха и восстановления.
Мы избегаем лишних метров и случайных решений — каждый элемент имеет функциональное назначение и логичное место.
Мы избегаем лишних метров и случайных решений — каждый элемент имеет функциональное назначение и логичное место.
• ОБЩАЯ ПЛОЩАДЬ: ~38–40 м²
• ГАБАРИТЫ ПО ПЯТНУ ЗАСТРОЙКИ: примерно 9,0 × 5,0 м
• ТЕРРАСА: ~15 м²
• ЭТАЖНОСТЬ: 1 этаж
• ГАБАРИТЫ ПО ПЯТНУ ЗАСТРОЙКИ: примерно 9,0 × 5,0 м
• ТЕРРАСА: ~15 м²
• ЭТАЖНОСТЬ: 1 этаж
Обсудим ваш проект бани
Мы реализуем этот проект или разработаем индивидуальное решение — под ваш участок, задачи и сценарий жизни.
какой может быть ваша баня
Не готовы оставлять заявку?
Напишите нам в мессенджере — ответим на вопросы и подскажем, с чего начать.
Напишите нам в мессенджере — ответим на вопросы и подскажем, с чего начать.
Наш адрес: красноярск, ул. Красной звезды 1
8 902 920 21 05
dto@primedevelop.ru
prime develop